Casa 6 camere de vanzare in Dezmir ID 5063
Dotari imobil
Beton
Detalii imobil
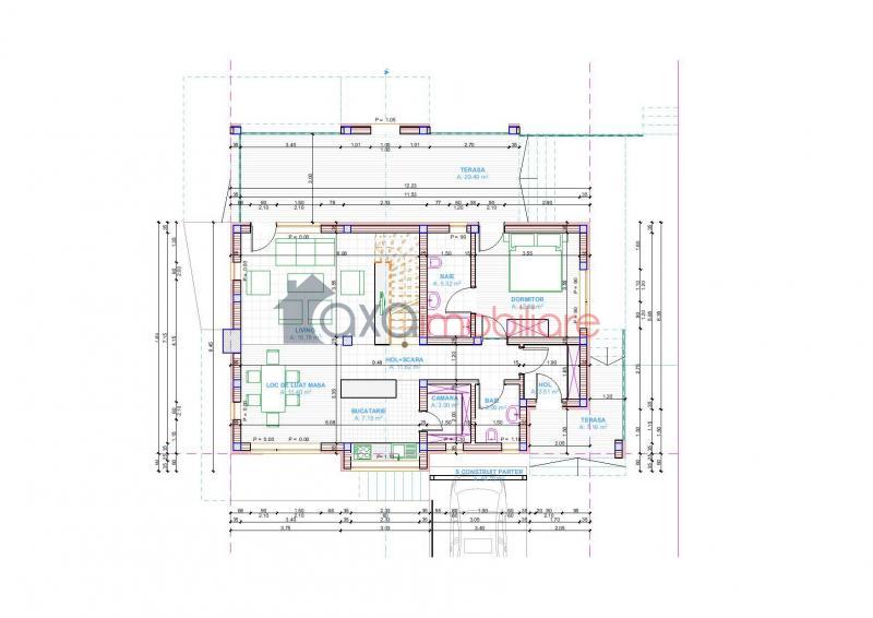
PARTER: living cu bucatarie de tip open space, 1 dormitor matrimonial (cu baie proprie), 1 terasa, casa scarii, hol, 1 baie.
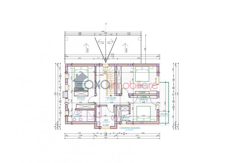
ETAJ: 2 dormitoare, 1 baie, hol, 1 dormitor matrimonial (cu baie proprie si dressing), balcon, casa scarii, hol.
Descriere imobil
Oferim spre vanzare casa individuala cu arhitectura moderna, situata in Dezmir, intr-o locatie linistita si aerisita, ideala pentru familii.
Casa are o suprafata utila de 200 mp, dispusa pe trei niveluri, respectiv D+P+E.
Compartimentarea este foarte bine gandita, astfel incat sa ofere confort.
- DEMISOL: 1 camera open space, 1 camera tehnica, 1 terasa.
- PARTER: living cu bucatarie de tip open space, 1 dormitor matrimonial (cu baie proprie), 1 terasa, casa scarii, hol, 1 baie.
- ETAJ: 2 dormitoare, 1 baie, hol, 1 dormitor matrimonial (cu baie proprie si dressing), balcon, casa scarii, hol.
Detalii despre constructie:
- fundatii din beton.
- peretii portanti din zidarie de caramida.
- planseu din beton armat.
- acoperis tip sarpanta din lemn si invelitoare din tigla.
Se vinde la stadiul de semifinisat cu sapa autonivelanta, peretii gletuiti si tencuiti.
Dotari: centrala termica, calorifere, geamuri termopan, usa la intrare.
Suprafata terenului este de 450 mp.
Imobilul dispune de toate utilitatile.
Opinia agentului
" Casa spatioasa, frumos compartimentata, dispusa pe 3 niveluri, ideala pentru familii. Locatia este linistita si aerisita, nou-dezvoltata. "



