Casa 5 camere de vanzare in Popesti ID 5443
Dotari imobil
Beton
Detalii imobil
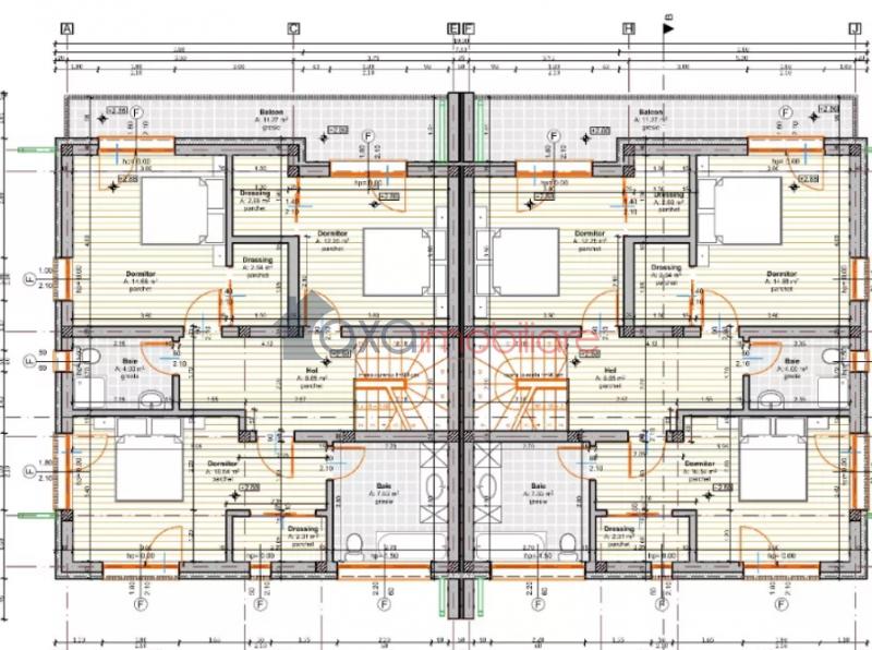
ETAJ / AL DOILEA NIVEL: 3 dormitoare cu dressing fiecare, 2 bai, hol, 1 balcon.
Descriere imobil
Propunem spre vanzare case cuplate, foarte cochete in ceea ce priveste arhitectura lor, situate in Popesti, jud. Cluj, la aproximativ 6 km de Lidl (Calea Baciului), intr-o locatie aerisita, linistita si verde.
In imediata vecinatate se afla statia de autobuz; accesul spre locatie se face printr-un drum asfaltat.
Recomandam aceasta zona pentru familii, dar si pentru cei care doresc sa locuiasca intr-o locatie linistita.
Suprafata unei case este de 140 mp + 26 mp de terasa + 1 balcon.
Regimul de inaltime este P+E; accesul intre niveluri se face prin intermediul scarilor interioare.
La primul nivel / parter se afla un living cu o bucatarie de tip open space, 1 birou / dormitor, 1 baie si 1 terasa.
La cel de-al doilea nivel se afla 3 dormitoare cu dressing fiecare, hol, 2 bai + 1 balcon.
Imobilul se vinde semifinisat, dar poate fi predat si finisat la cererea clientului.
Dotari: centrala termica, incalzire in pardoseala (la parter), calorifere (la etaj), geamuri termopan cu 3 sticle si profil 6 camere, usa la intrare.
De asemenea, toate utilitatile sunt trase la pozitie.
Detalii despre constructie: zidarie din caramida, izolatie cu polistiren (10 cm) EPS 80.
In pod se afla spatiu pentru depozitare.
Suprafata terenului este de 450 mp, amenajat si imprejmuit.
Termen de finalizare: Martie 2020.
Opinia agentului
" Case cuplate foarte cochete, dispuse pe doua niveluri, situate intr-o locatie aerisita si linistita, la aproximativ 6 km de Lidl / Calea Baciului. Ideale pentru familii. "



