Casa 5 camere de vanzare in Cluj-Napoca, Iris ID 5257
Dotari imobil
Beton
Detalii imobil
ETAJ / AL DOILEA NIVEL: 2 dormitoare simple, 1 baie comuna, 1 hol, 1 dormitor matrimonial cu baie proprie.
Descriere imobil
Casa unifamiliala cu accente arhitecturale moderniste, ce se evidentiaza prin rafinament si eleganta in ceea ce privesc finisajele exterioare; atentia la detalii si alegerea materialelor de constructie, pun in valoare o casa deosebita situata in Cluj-Napoca, in cartierul Iris, in zona strazii Oasului, intr-o locatie frumoasa si linistita de case/vile.
Este o casa ce pune accent pe confort si pe imbunatatirea calitatii vietii, astfel incat dispune de o compartimentare foarte frumoasa, bine gandita si organizata. Aceasta este dispusa pe doua niveluri, avand regim de inaltime P+E; la parter fiind zona de zi / de socializare, iar la etaj fiind zona de odihna. Zonele sunt foarte frumos delimitate; accesul intre etaje se realizeaza prin intermediul unei scari interioare.
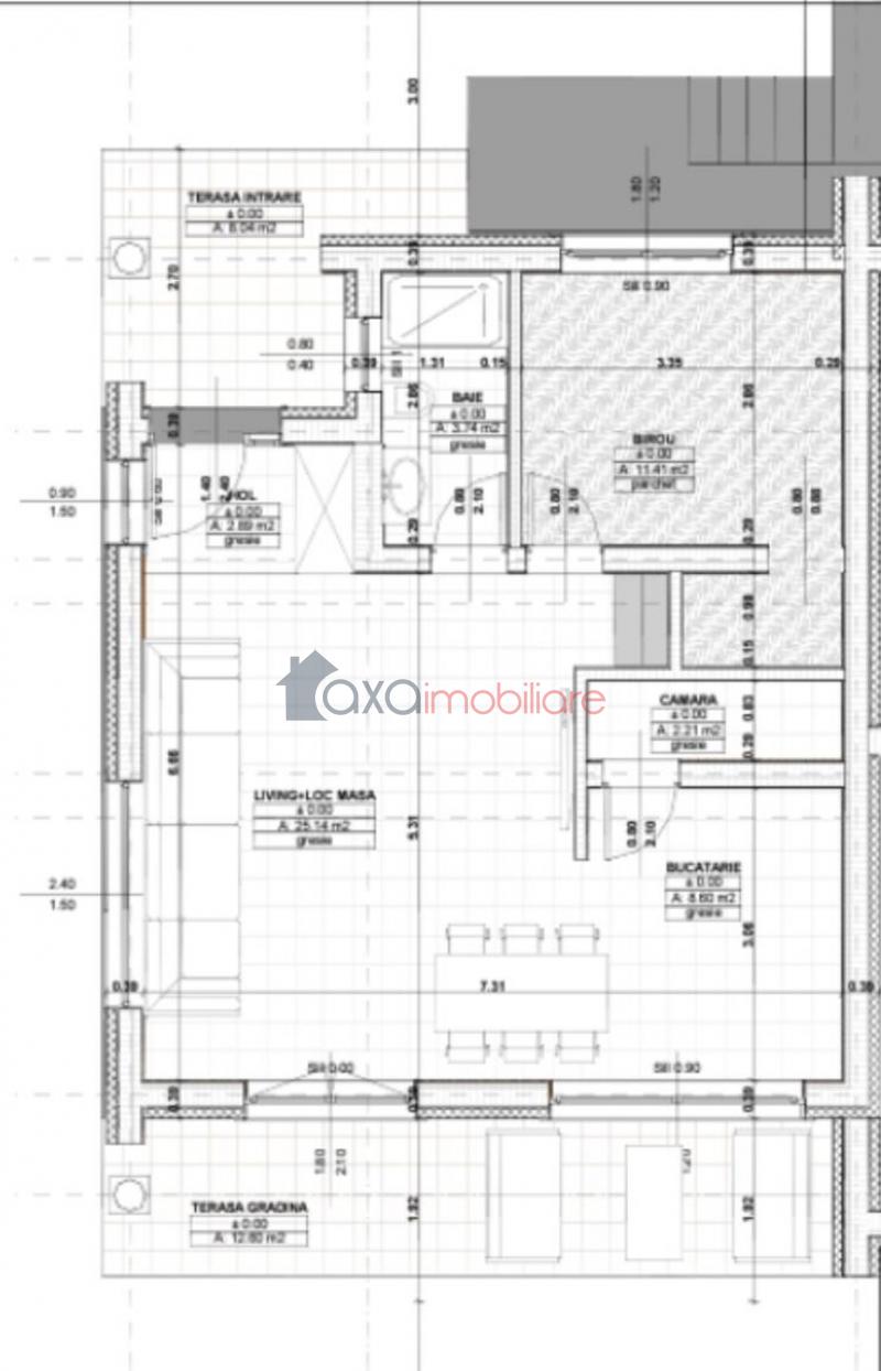
La primul nivel se afla un living generos cu loc de luat masa, 1 bucatarie, 1 camara, 1 baie si 1 birou/camera. De asemenea, la parter se afla o terasa la intrare si o terasa la gradina.
La etaj sunt 3 dormitoare: 2 dormitoare simple si 1 dormitor matrimonial (cu baie proprie), 1 baie pe nivel, 1 hol. Asadar, acest imobil pune accent pe organizarea cat mai corecta si mai frumoasa a spatiului.
Suprafata construita este de 184 mp + cai de acces si trotuare, iar suprafata utila este de 150 mp + 21 mp de terase.
Suprafata terenului este de 250 mp + 50 mp cota parte din drum.
In ceea ce priveste constructia casei, aceasta pune accent pe calitate; materialele folosite au o calitate superioara.
Dotari: centrala termica, incalzire in pardoseala sau calorifere (la alegerea clientului), geamuri termopan cu tamplarie Rehau sau Salamander cu 3 sticle, usa la intrare.
Imobilul este izolat termic cu polistiren de 15 cm.
Se preda la stadiul de semifinisat in interior si finisat la exterior.
Opinia agentului
" Locuinta unifamiliala ce satisface cele mai exigente cerinte; incepand de la aspectul acesteia pana la confortul si calitatea vietii. Este o casa ce pune accent pe rafinament, atentia la detalii, compartimentare moderna, dar si pe locatia linistita si frumoasa din cartierul Iris. O casa deosebita, plina de sarm. "



