Casa 5 camere de vanzare in Cluj-Napoca, Buna Ziua ID 6060
Dotari imobil
Beton
Detalii imobil
ETAJ / AL DOILEA NIVEL: 1 dormitor matrimonial cu baie proprie si dressing, 1 dormitor matrimonial cu baie proprie, 1 hol.
MANSARDA / AL TREILEA NIVEL: 1 dormitor, 1 baie, 1 hol, 1 camera pentru relaxare.
Descriere imobil
Oferim spre vanzare imobil de tip duplex cu o arhitectura cocheta, constructie noua din 2021, situat in Cluj-Napoca, in cartierul Buna Ziua, in zona strazii Macesului, intr-o locatie exclusiva de case si vile.
Imobilul face parte dintr-un ansamblu de duplex-uri.
Regimul de inaltime este P+E+M.
Suprafata utila este de 150 mp; compartimentata foarte frumos, dispusa pe niveluri astfel:
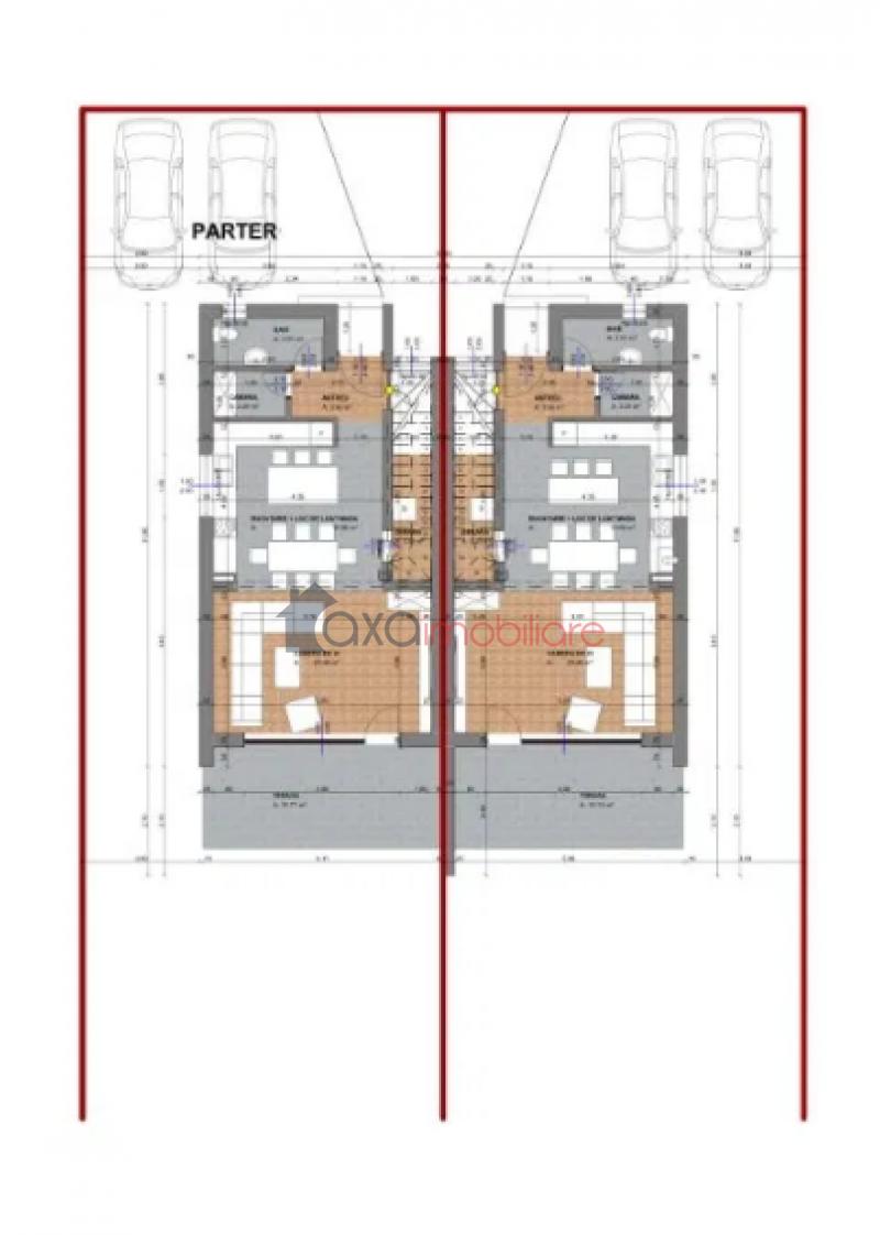
PARTER / PRIMUL NIVEL: 1 living, 1 bucatarie cu 1 camara, loc de luat masa, 1 hol, 1 baie, scara interioara, terasa.
ETAJ / AL DOILEA NIVEL: 1 dormitor matrimonial cu baie proprie si dressing, 1 dormitor matrimonial cu baie proprie, 1 hol.
MANSARDA / AL TREILEA NIVEL: 1 dormitor, 1 baie, 1 hol, 1 camera pentru relaxare.
Se vinde la stadiul de semifinisat in interior si finisat la exterior.
Exterior
Teren imprejmuit cu gard, spatiu verde si gradina amenajata, loc de parcare si trotuare pavate.
Decorativa.
Interior
Peretii tencuiti
1 strat de glet
Sapa turnata
Instalatii electrice, respectiv instalatii sanitare trase la pozitie
Incalzire prin pardoseala
Centrala termica
Geamuri termopan cu tamplarie din PVC (trei straturi de sticla)
Usa la intrarea principala.
Termen de finalizare Mai 2021.
Se accepta plata prin credit.
Preturi si suprafete / Disponibile 2 unitati locative
- O unitate cu teren in suprafata de 230 mp la pretul de 265.000 Euro
- O unitate cu teren in suprafata de 420 mp la pretul de 295.000 Euro.
Opinia agentului
" Imobil de tip duplex dispus pe 3 niveluri, cu o compartimentare moderna, interesant gandita, ce pune accent pe intimitate si confort, situat in Buna Ziua, intr-o locatie exclusiva de case si vile. Zona ideala pentru familii. Arhitectura cocheta, teren imprejmuit cu gard, alei pavate si locuri de parcare. "



