Casa 4 camere de vanzare ID 2543
Pret:
78 000 EURO negociabil
Nr. camere:
4
Suprafata utila:
100.59 m2
Suprafata teren:
240 m2
Adaugat in data:
28-07-2015
Actualizat in data:
06-02-2020
Vizite oferta:
17834
Dotari imobil
Bucatarie:
1
Bai:
2
Terase:
1
Garaj:
nu
Parcare:
da
Beci:
nu
Gradina:
da
Acces auto:
da
Finisaje:
Semifinisat
Mobilat:
nu
Utilat:
nu
Constructie:
Caramida
Geamuri termopan
Centrala termica
CF
Detalii imobil
In complex de case insiruite
Etaje:
P+1E
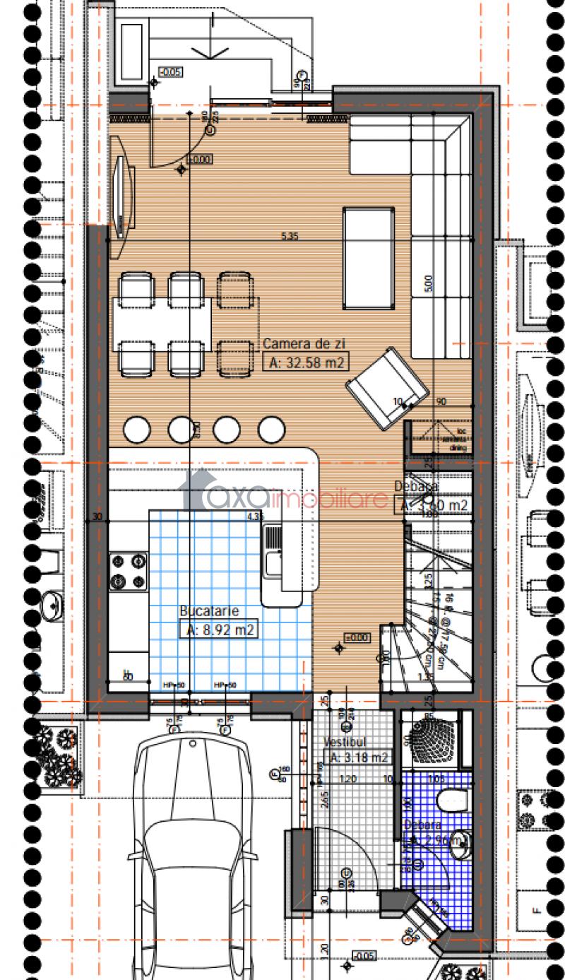
Compartimentare:
PARTER: 1 living cu 1 bucatarie de tip open space, 1 baie, 1 hol; ETAJ 1: 3 dormitoare, 1 balcon, 1 hol, 1 baie
Constructie noua:
da
Anul constructiei:
2015
Finalizat:
da
Data finalizarii:
2015
Descriere imobil
Oferim spre vanzare case insiruite, situate in Floresti, intr-o zona linistita de case/vile. Casa are o suprafata utila de 100.59 mp cu regim de inaltime P+1E. Compartimentarea este gandita astfel: PARTER: 1 living cu 1 bucatarie de tip open space, 1 baie, 1 hol; ETAJ 1: 3 dormitoare, 1 balcon, 1 hol, 1 baie. Se ofera spre vanzare semifinisata cu sapa autonivelanta si peretii gletuiti. Casa are in dotare centrala termica, geamuri termopan, usa metalica si scara interioara. Dispune de teren, aproximativ 240 mp. In pret este inclus si 1 loc de parcare.
Folositi formularul de mai jos pentru a ne contacta
Persoana de contact: Ciuca Aurica
Telefon: 0752/283205
Fax: + 40 264 333 147
Email: aurica@axaimobiliare.com
Adresa: Cluj-Napoca, Str. Memorandumului, nr. 19



