Casa 4 camere de vanzare in Cluj-Napoca, Dambul Rotund ID 6200
Dotari imobil
Beton
Detalii imobil
Descriere imobil
De vanzare 2 case situate in aceeasi curte; C1 fiind constructie noua, iar C2 fiind constructie veche.
Localizare
Cluj-Napoca, in cartierul Dambul Rotund, intr-o locatie linistita de case si vile, cu acces usor spre strada Maramuresului, dar si spre Ciuperca.
Accesul se face pe drum privat.
Casa C1 este construita in anii 1980 pe structura din caramida si are un singur nivel.
Compartimentare C1
Parter: 4 camere, 1 bucatarie, 2 holuri, 1 baie.
Exista posibilitate de recompartimentare in functie de nevoi si poate fi pretabila ca spatiu de locuit sau pentru diferite activitati de afacere.
Aceasta casa este goala, necesita renovare sau se poate demola pentru a mari curtea.
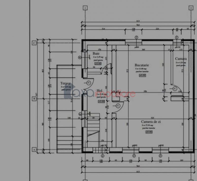
Casa C2 este construita in 2016, are 133 mp construiti, 101 mp utili, regim de inaltime P + 1E + pod.
Compartimentare C2
Parter: un living spatios si luminos, bucatarie, o baie, o camara si o terasa;
Etaj: 2 dormitoare generoase, hol, o baie si o terasa.
Incalzirea se face prin centrala termica proprie.
Se vinde utilata si mobilata.
Dotari
Centrala termica, geamuri termopan, usi interioare.
Finisaje
Parchet, gresie, faianta, vopsea lavabila.
Utilitati
Apa, gaz, electricitate, canalizare, TV cablu, internet.
Drumul de acces catre proprietate este ingust (fiind un drum de servitute), astfel incat permite accesul auto, dar pe rand.
Suprafata terenului este de 583 mp.
Opinia agentului
" 2 case la pachet cu o suprafata de teren de 583 mp; una din ele fiind constructie noua (finisata, complet mobilata si utilata), iar cealalta fiind constructie veche (posibilitate de recompartimentare, renovare sau chiar de demolare pentru cei care doresc sa isi mareasca curtea). Locatie linistita de case si vile, cu acces usor spre strada Maramuresului. Un alt avantaj este faptul ca, una din case ar putea fi si o afacere ! "



