Casa 4 camere de vanzare in Cluj-Napoca, Borhanci ID 4056
Dotari imobil
Detalii imobil
ETAJ: 2 dormitoare, baie, hol.
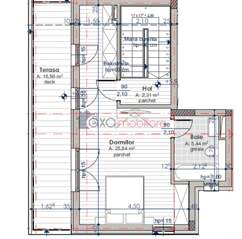
ETAJ RETRAS: dormitor matrimonial, baie, hol, terasa.
Descriere imobil
Va oferim spre vanzare imobil de tip duplex, cu o suprafata de 120 mp, dispus pe 3 niveluri, respectiv P+E+ER, cu termen de finalizare in August 2017.
Imobilul este situat in Cluj-Napoca, in cartierul Borhanci, intr-o locatie linistita, cu spatii verzi in jur.
Duplex-ul este compus din 4 camere, 3 bai, 1 bucatarie, 1 loc de luat masa si 2 terase.
Compartimentare:
- PARTER: camera de zi, loc de luat masa, hol, baie, terasa.
- ETAJ: 2 dormitoare, baie, hol.
- ETAJ RETRAS: dormitor matrimonial, baie, hol, terasa.
Detalii despre constructie:
- Duplex-ul este construit din caramida Porotherm.
- Dispune de termosistem din polistiren.
- Geamuri termopan cu 3 sticle cu protectie solara.
- Dispune de sistem de incalzire in pardoseala (Italia).
- Usa antiefractie.
Se vinde la stadiul de semifinisat cu instalatiile trase la pozitie (instalatii electrice, sanitare, gaz, curent), peretii tencuiti, sape turnate.
Dispune de teren cu suprafata de 85 mp, doua locuri de parcare.
Exista posibilitate de executie finisaje la preturi corecte.
Opinia agentului
"Duplex cu arhitectura moderna, ce dispune de compartimentare bine gandita, astfel incat sa ofere confort viitorilor proprietari, situat in cartierul Borhanci, intr-o locatie aerisita si linistita."



