Casa 3 camere de vanzare in Cluj-Napoca, Borhanci ID 4957
Dotari imobil
Beton
Detalii imobil
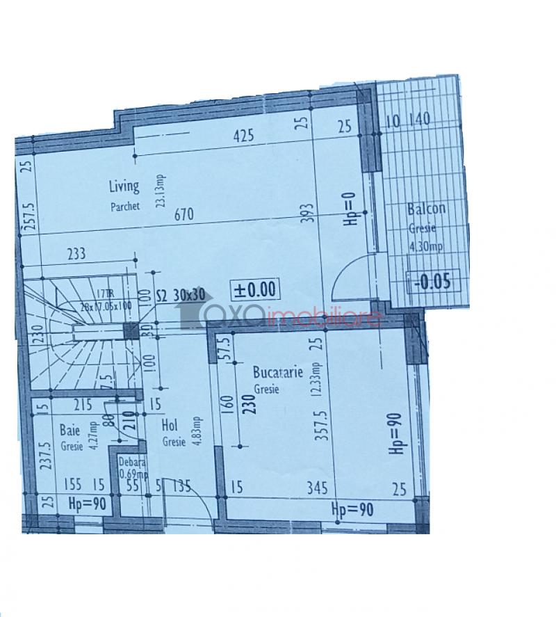
PARTER: living, bucatarie, baie, hol, balcon.
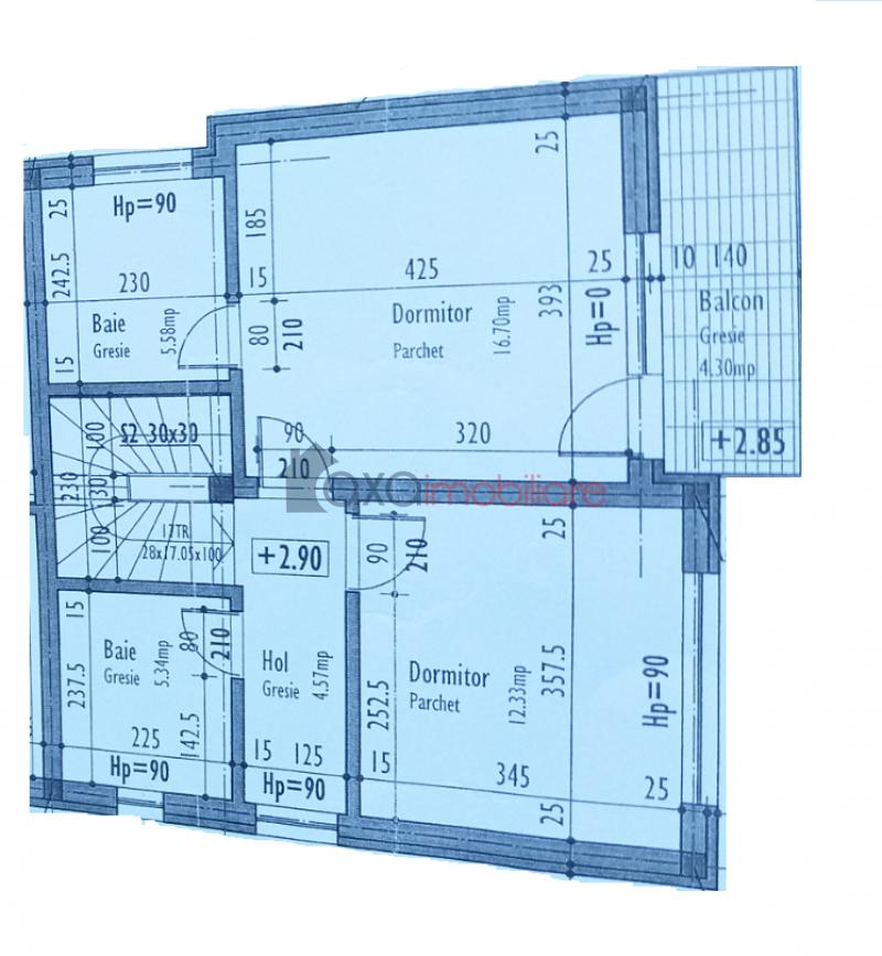
ETAJ: 2 dormitoare, 2 bai, hol, balcon.
Descriere imobil
Vindem duplex cu 3 camere, la stadiul de semifinisat, situat in Cluj-Napoca, in cartierul Borhanci, in zona Manastirii.
Cartierul Borhanci este un cartier nou-dezvoltat, linistit si aerisit, cu multa verdeata in jur; fiind ideal pentru familii.
Suprafata imobilului este de 96 mp, iar suprafata terenului este de aproximativ 200 mp.
Regimul de inaltime este S+P+E.
- SUBSOL: garaj.
- PARTER: living, bucatarie, baie, hol, balcon.
- ETAJ: 2 dormitoare, 2 bai, hol, balcon.
Finalizarea imobilului va fi in August 2019.
Se vinde la stadiul de semifinisat cu sapa autonivelanta, peretii gletuiti si tencuiti.
Dotari: geamuri termopan si centrala termica.
Opinia agentului
" Duplex semifinisat, dispus pe regim de inaltime S+P+E, compus din 3 camere, situat intr-un cartier linistit si aerisit - cartierul Borhanci. "



