Penthouse 3 camere de vanzare in Cluj-Napoca, Ultracentral ID 6440
Dotari imobil
Beton
Descriere imobil
Exclusivitate.
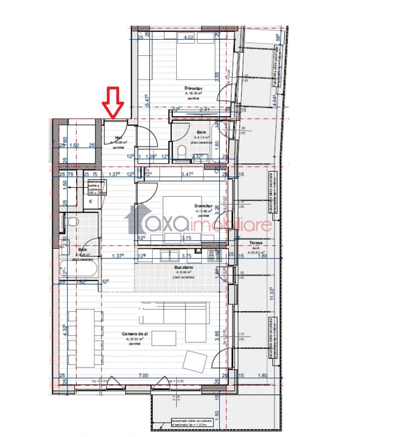
Oferim spre vanzare apartament semifinisat, cu o suprafata utila de 81 mp + 1 terasa deck in suprafata de aprox. 35 mp, situat in Cluj-Napoca, ultracentral, pe strada Clinicilor, intr-o locatie excelenta, la un pas de facilitati.
Apartamentul face parte dintr-un ansamblu rezidential nou si modern; constructie mixta dispusa pe regim de inaltime S+P+2E+ER; cladire cu spatii comerciale la parter, locuri de parcare in subteran, iar la nivelurile superioare fiind apartamente.
Vecinatati / Facilitati
Educatie: crese, gradinite, scoli, licee, universitati (acces usor spre Universitatea de medicina si farmacie, USAMV etc.)
Sanatate: farmacii, cabinete medicale, clinici, spitale etc.
Transport: statia de autobuz, troleibuz, stand de taxi.
Altele: magazine, supermarket-uri, terase, restaurante, saloane de infrumusetare, sali de sport, banci etc.
Acces usor spre Casa de cultura a studentilor, Motilor, Napoca, cartierele Zorilor si Manastur, Calea Manastur, Primarie, Universitatea Tehnica, Parcul central etc.
Pozitionare
Etaj retras intr-o cladire noua mixta S+P+2E+ER; dotata cu lift si cu statie de incarcare pentru automobil electric.
Suprafata utila este de 81 mp + 1 terasa deck cu o suprafata de aproximativ 35 mp.
Compartimentare
1 hol de acces
1 dormitor matrimonial cu baie proprie si cu acces pe terasa
1 dormitor simplu cu acces pe terasa
1 camera de zi cu o bucatarie de tip open space si cu acces pe terasa
1 baie
1 terasa.
Se vinde la stadiul de semifinisat cu toate utilitatile trase la pozitie.
Dotari
Centrala termica, geamuri termopan, usa antiefractie.
Utilitati
Apa, gaz, electricitate, canalizare, interfon.
Optional
Loc de parcare in garajul subteran (20.000 Euro).
Opinia agentului
" O locuinta generoasa situata in inima orasului Cluj-Napoca, intr-o locatie frumoasa, cu acces imediat spre punctele de interes. Un apartament ce ofera o priveliste frumoasa, ce dispune de compartimentare moderna si care face parte dintr-un ansamblu rezidential nou. "



