Apartament 3 camere de vanzare in Cluj-Napoca, Intre Lacuri ID 2489
Pret:
68 298 EURO negociabil
Pret/mp:
1 150 EURO/m2
Nr. camere:
3
Etaj:
1/5
Bloc Nou:
da
Anul constructiei:
2015
Finalizat:
da
Data finalizarii:
2016
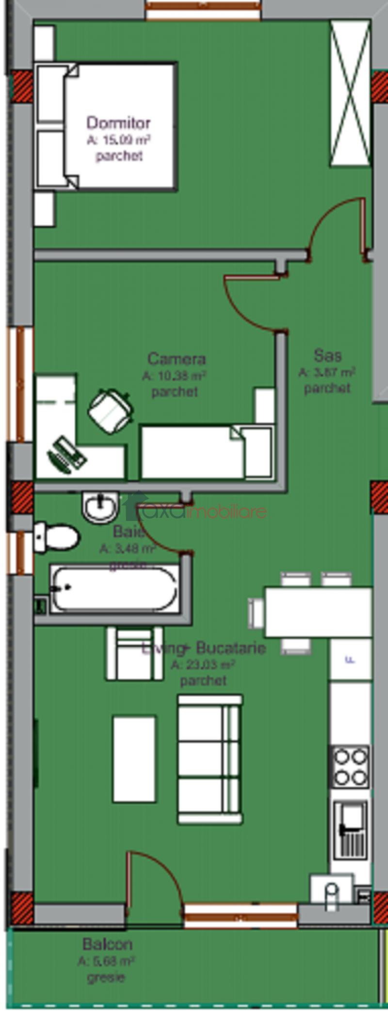
Suprafata utila:
59.39 m2
Balcoane:
1
Localitate:
Cluj-Napoca
Cartier:
Intre Lacuri
Zona:
Iulius Mall
Strada:
Tulcea
Adaugat in data:
16-07-2015
Actualizat in data:
09-10-2023
Vizite oferta:
12953
Dotari imobil
Bucatarie:
1
Bai:
1
Parcare:
nu
Beci:
nu
Decomandari:
Semidecomandat
Finisaje:
Semifinisat
Mobilat:
nu
Utilat:
nu
Constructie:
Caramida
Geamuri termopan
Usa antiefractie
Centrala termica
Contoare gaz
CF
Descriere imobil
Va oferim spre vanzare apartament cu 3 camere, semifinisat, suprafata utila 59.39 mp, situat in zona strazii Tulcea din cartierul Intre Lacuri. Vecinatati: FSEGA, Iulius Mall, statia de autobuz, parcuri, scoli etc.
Apartamentul este pozitionat la etajul 1 al unui imobil nou cu 5 etaje.
Compartimentarea este semidecomandata si gandita astfel: 1 living cu 1 bucatarie de tip open space, 2 dormitoare, 1 baie, 1 hol si 1 balcon.
Se vinde la stadiul de semifinisat cu sapa autonivelanta si peretii gletuiti.
Dispune de centrala termica, geamuri termopan si usa antiefractie.
Folositi formularul de mai jos pentru a ne contacta
Persoana de contact: Secretariat
Telefon: 0742/130130
0264/333147
Fax: + 40 264 333 147
Email: office@axaimobiliare.com
Adresa: Cluj-Napoca, Str. Memorandumului, nr. 19



