Apartament 2 camere de vanzare in Floresti ID 6116
Dotari imobil
Beton
Descriere imobil
Exclusivitate !
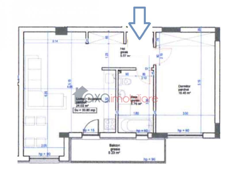
Oferim spre vanzare apartament cu 2 camere, semifinisat, suprafata utila 50.80 mp + 1 balcon de 5.23 mp, situat in Floresti, pe strada Sub Cetate, intr-o locatie foarte buna; nou-dezvoltata, cu acces usor spre punctele de interes.
Zona este ideala pentru familii.
Pozitionare
Etaj intermediar / D+P+2E+ER intr-un bloc nou.
Compartimentare
1 living cu 1 bucatarie de tip open space
1 dormitor
1 baie
1 hol
1 balcon deschis (finisat).
Apartamentul se vinde la stadiul de semifinisat; cu utilitatile trase la pozitie.
Dotari
Centrala termica, calorifere, geamuri termopan, usa antiefractie.
Contra cost
Loc de parcare in garajul subteran (4.000 Euro).
Opinia agentului
" Avantajele ofertei: constructie noua, compartimentare moderna si frumos organizata, etaj intermediar, locatie foarte buna (avand facilitati in imediata vecinatate). "



