Apartament 2 camere de vanzare in Cluj-Napoca, Marasti ID 4704
Dotari imobil
Beton
Descriere imobil
Propunem spre vanzare apartament cu 2 camere, semifinisat, situat in Cluj-Napoca, in cartierul Marasti, la 5 minute de Kaufland, fiind o zona buna atat pentru locuit, cat si pentru investitie.
Pozitionare: parter/2S+P+5E+ER, intr-un bloc nou cu termen de finalizare in Decembrie 2019. Blocul dispune de lift.
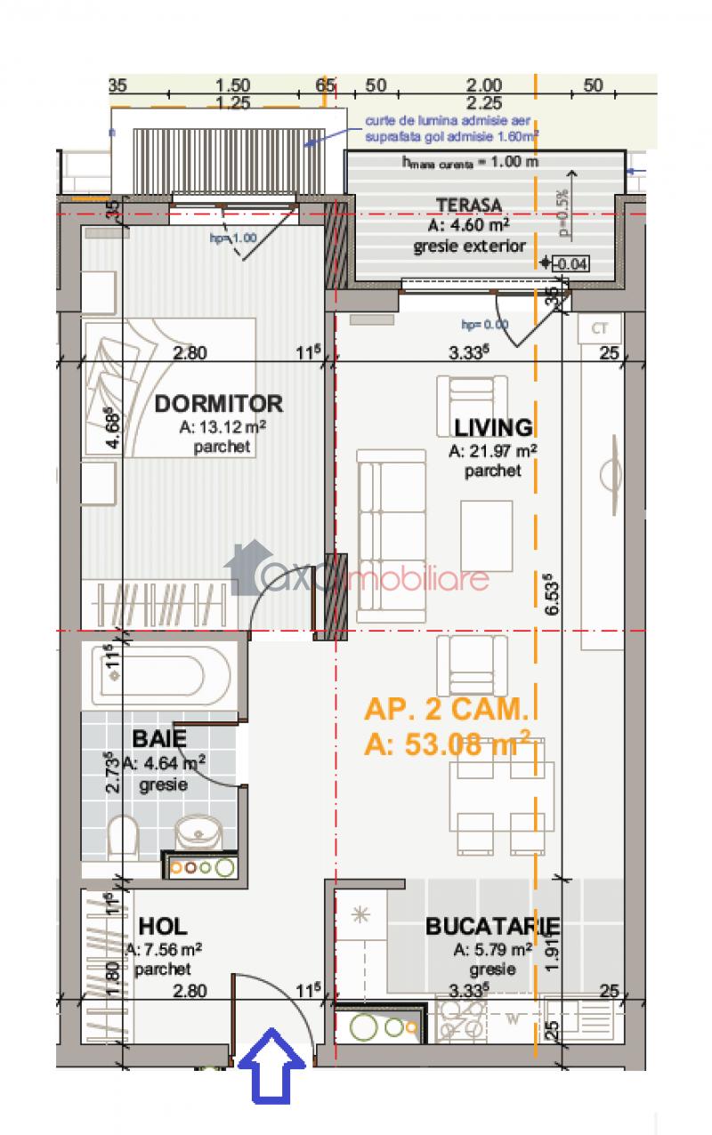
Compartimentare: 1 living, 1 bucatarie, 1 hol, 1 dormitor, 1 baie + 1 terasa.
Se vinde la stadiul de semifinisat, avand in dotare centrala termica, calorifere, geamuri termopan si usa antiefractie.
Pretul unui loc de parcare este de 5.000 euro.
Preturile pot varia in functie de modalitatea de plata:
- 1100 euro + TVA, pentru avans de 90%;
- 1150 euro + TVA, pentru avans de 50%;
- 1200 euro + TVA, pentru avans de 30%.
Opinia agentului
" Recomand acest apartament datorita compartimentarii si locatiei. De asemenea, calitatea si arhitectura constructiei constituie alte avantaje ale ofertei. "



