Apartament 2 camere de vanzare in Cluj-Napoca, Gheorgheni ID 2549
Pret:
49 000 EURO
Pret/mp:
1 000 EURO/m2
Nr. camere:
2
Etaj:
1/4
Bloc Nou:
da
Anul constructiei:
2015
Finalizat:
da
Data finalizarii:
2015
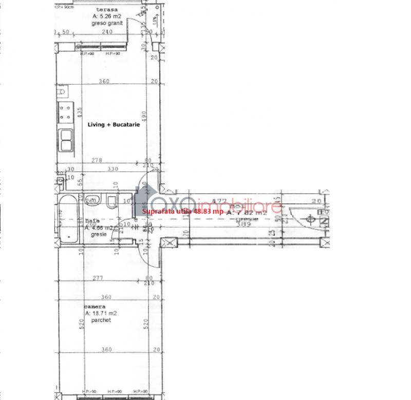
Suprafata utila:
48.83 m2
Balcoane:
1
Localitate:
Cluj-Napoca
Cartier:
Gheorgheni
Strada:
Brancusi
Adaugat in data:
29-07-2015
Actualizat in data:
18-05-2023
Vizite oferta:
16747
Dotari imobil
Bucatarie:
1
Bai:
1
Parcare:
da
Beci:
nu
Decomandari:
Semidecomandat
Finisaje:
Semifinisat
Mobilat:
nu
Utilat:
nu
Constructie:
Caramida
Geamuri termopan
Usa antiefractie
Centrala termica
Contoare gaz
CF
Descriere imobil
Propunem spre vanzare apartament cu 2 camere, suprafata utila 48.83 mp, semidecomandat, pozitionat la parterul unui imobil nou, finalizat in 2015 cu regim de inaltime P+3E+M.
Imobilul este situat in cartierul Gheorgheni, capat de Brancusi, in apropiere de statia de autobuz.
Este compartimentat astfel: 1 living cu 1 bucatarie de tip open space, 1 dormitor, 1 baie, 1 hol si 1 balcon.
Se vinde la stadiul de semifinisat cu sapa autonivelanta si peretii gletuiti. Dispune de centrala termica, geamuri termopan si usa metalica.
In pret este inclus si 1 loc de parcare.
Aceeasi compartimentare si suprafata se poate achizitiona si la etajele intermediare.
Folositi formularul de mai jos pentru a ne contacta
Persoana de contact: Ciuca Aurica
Telefon: 0752/283205
Fax: + 40 264 333 147
Email: aurica@axaimobiliare.com
Adresa: Cluj-Napoca, Str. Memorandumului, nr. 19



