Apartament 2 camere de vanzare in Cluj-Napoca, Dambul Rotund ID 3457
Dotari imobil
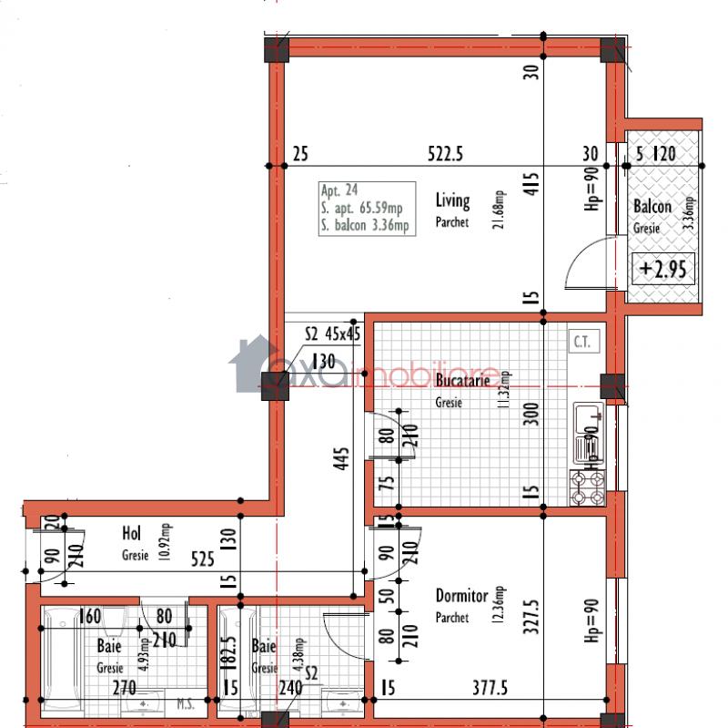
Descriere imobil
Propunem spre vanzare apartament cu 2 camere, semifinisat, imobil nou, confort sporit, suprafata utila 66 mp, decomandat, pozitionat la etaj intermediar (1E/P+5E). La parter fiind spatii comerciale.
Apartamentul este situat in cartierul Dambul Rotund, in zona Scolii de Politie.
Este compus dintr-un living, 1 bucatarie, 2 bai, 1 hol, 1 balcon si 1 dormitor.
Se vinde la stadiul de semifinisat cu sapa autonivelanta, peretii gletuiti, usa antiefractie, centrala termica si geamuri termopan cu tamplarie din PVC.
Aceleasi compartimentari si suprafete pot fi achizitionate si la etajele 2,3,4,5.
Finalizarea imobilului: In cursul anului 2016.
Opinia agentului
''Imobil nou, spatios, frumos compartimentat, pozitionat la etaj intermediar, situat in cartierul Dambul Rotund.''



