Apartament 2 camere de vanzare in Cluj-Napoca, Borhanci ID 4528
Dotari imobil
Beton
Descriere imobil
De vanzare apartament cu 2 camere, situat in Cluj-Napoca, in cartierul Borhanci, intr-o locatie nou-dezvoltata.
Cartierul Borhanci este un cartier linistit si aerisit, cu zone verzi; fiind potrivit pentru cei care doresc sa locuiasca intr-o locatie linistita, cu o panorama deosebita.
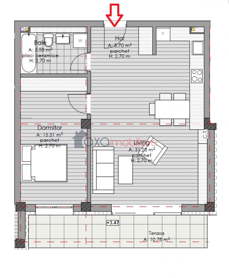
Apartamentul are o suprafata utila de 58.08 mp; fiind compus dintr-un living, 1 bucatarie, 1 dormitor, 1 hol, 1 baie si 1 terasa (10.78 mp).
Pozitionare: etaj intermediar (1/S+P+2E+ER) intr-un bloc nou cu lift si videointerfon.
Utilitati: energie electrica, gaz, apa, canalizare, cablu TV, cablu internet.
Sistemul de incalzire este prin intermediul centralei termice si al caloriferelor.
De asemenea, toate instalatiile electrice, termice si sanitare sunt trase la pozitie.
Peretii sunt gletuiti si slefuiti cu un strat de vopsea lavabila alba, terasa este finisata cu pardoseala greso-granit si dispune de balustrada din sticla securizata.
Alte dotari: geamuri termopan cu tamplarie din PVC - Rehau cu 6 camere si 3 straturi de sticla, usa antiefractie, contoare gaz si apometre.
Opinia agentului
" Recomand aceasta oferta clientilor mei care doresc sa locuiasca intr-o locatie linistita si verde. Apartament spatios, pozitionat la etaj intermediar intr-un bloc nou din cartierul Borhanci. "



