Apartament 1 camere de vanzare in Cluj-Napoca, Gradini Manastur ID 3116
Dotari imobil
Beton
Descriere imobil
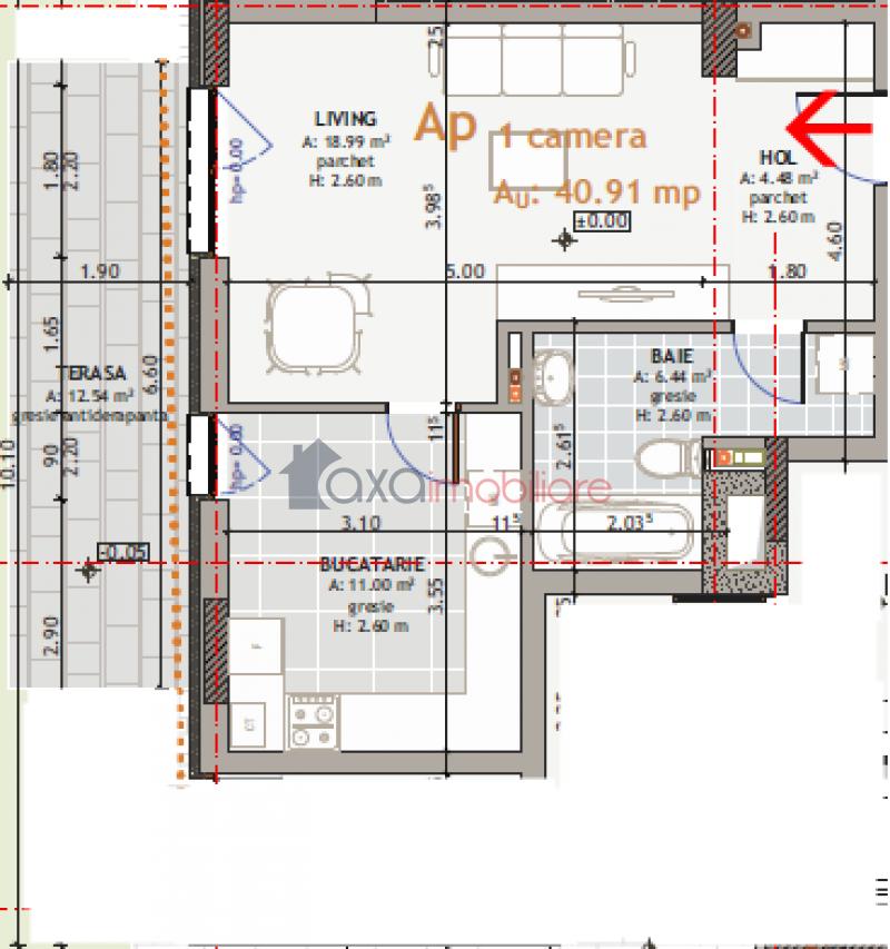
Oferim spre vanzare apartament cu 1 camera, suprafata utila 40.91 mp, imobil nou, situat in cartierul Gradini Manastur, in apropiere de Agronomia, statia de autobuz si magazine.
Apartamentul este pozitionat la parterul unui imobil nou dispus pe regim de inaltime P+5E, ce dispune de lift.
Compartimentarea este semidecomandata; imobilul este compus dintr-o camera, 1 bucatarie, 1 hol, 1 baie si 1 terasa.
Dispune de centrala termica, calorifere, usa metalica la intrare si geamuri termopan cu tamplarie din PVC.
Se vinde la stadiul de semifinisat cu sapa autonivelanta, iar peretii sunt dati cu lavabil.
Finalizarea imobilului va fi in August 2016.
Se poate achizitiona loc de parcare contra sumei de 4000 euro si/sau garaj 8000 euro.
Aceleasi compartimentari si suprafete pot fi achizitionate si la etaje intermediare.
Opinia agentului
''Apartament semifinisat, ce poate fi amenajat dupa bunul plac, potrivit pentru o persoana sau un cuplu.''



