Apartament 1 camere de vanzare in Cluj-Napoca, Dambul Rotund ID 5485
Dotari imobil
Beton
Descriere imobil
Oferim spre vanzare apartament la stadiul de semifinisat, cu 1 camera, suprafata utila de 40 mp, situat in Cluj-Napoca, in cartierul Dambul Rotund, in apropiere de Lidl si statia de autobuz.
Pozitionare: etaj intermediar / D1+D2+P+5E+ER, intr-un bloc nou dotat cu lift.
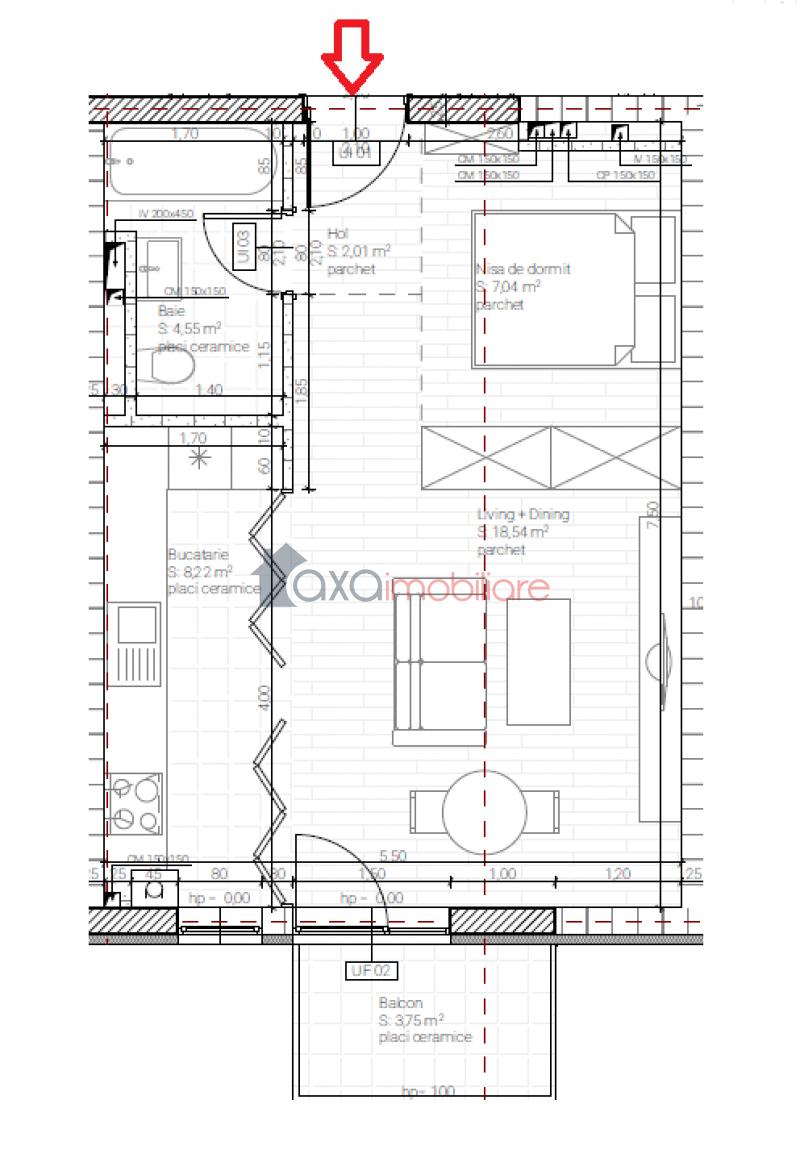
Compartimentare: hol, 1 living cu dining, nisa de dormit, 1 bucatarie, 1 baie + 1 balcon.
Dotari: centrala termica, calorifere, geamuri termopan, usa antiefractie.
Se vinde semifinisat cu utilitatile trase la pozitie.
Pretul este negociabil in functie de modalitatea de plata.
Pretul unui loc de parcare este de 6.000 Euro (subteran).
Opinia agentului
" Recomand aceasta oferta pentru investitie. Apartamentul este pozitionat la etaj intermediar intr-un bloc nou cu lift, se afla in apropiere de Lidl si statia de autobuz. "



