House 4 rooms for sell in Cluj-napoca, Gruia ID 3713
Price:
155 000 EURO negotiable
No. of rooms:
4
Build area:
120 m2
Land area:
360 m2
City:
Cluj-Napoca
Ward:
Gruia
Add date:
08-09-2016
Update date:
07-06-2017
Views number:
13228
Characteristic details
Kitchen:
1
Bathrooms:
4
Garage:
yes
Parking:
no
Cellar:
yes
Garden:
yes
Auto access:
yes
Finishing:
Semi finishing
With furniture:
no
Fit out:
no
Build:
Bricks
Frostedglass windows
CF
Imobil details
Building floors:
D+P+E
Floors description:
DEMISOL: 1 garaj, 1 magazie, 1 bucatarie + 1 dining, 1 baie.
PARTER: 1 living, 1 dormitor, 1 hol, 1 baie.
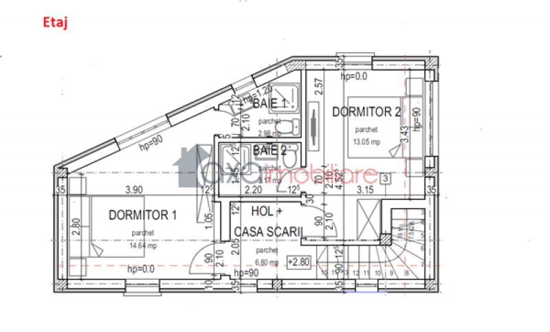
ETAJ: 2 dormitoare, 2 bai, 1 hol.
PARTER: 1 living, 1 dormitor, 1 hol, 1 baie.
ETAJ: 2 dormitoare, 2 bai, 1 hol.
New building:
yes
Build year:
2016
Finalized building:
yes
Finalized date:
Mai-Iunie 2017
You can conctact us using the form below.
Contact person: Secretariat
Phone: 0742/130130
0264/333147
Fax: + 40 264 333 147
Email: office@axaimobiliare.com
Address: Cluj-Napoca, Str. Memorandumului, nr. 19



