House 4 rooms for sell in Cluj-napoca, Borhanci ID 3909
Price:
220 000 EURO negotiable
No. of rooms:
4
Build area:
200 m2
Land area:
600 m2
City:
Cluj-Napoca
Ward:
Borhanci
Zone:
C-TIN BRANCUSI
Add date:
16-12-2016
Update date:
28-06-2017
Views number:
13143
Characteristic details
Kitchen:
1
Bathrooms:
3
Terraces:
3
Garage:
yes
Parking:
yes
Cellar:
no
Garden:
yes
Auto access:
yes
Finishing:
Semi finishing
With furniture:
no
Fit out:
no
Build:
Bricks
Frostedglass windows
Heat station
Imobil details
Chained houses
Building floors:
P+E / 2 niveluri
Floors description:
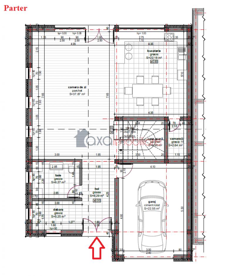
Primul nivel: 1 hol, 1 camera de zi, 1 bucatarie, 1 debara, 1 baie, 1 camara, 1 garaj.
Al doilea nivel: 3 dormitoare, 2 bai, 1 hol, 1 dressing, 3 terase. (Unul din dormitoare dispune de dressing si baie).
Al doilea nivel: 3 dormitoare, 2 bai, 1 hol, 1 dressing, 3 terase. (Unul din dormitoare dispune de dressing si baie).
New building:
yes
Build year:
2017
Finalized building:
no
Finalized date:
Mai-Iunie 2017
You can conctact us using the form below.
Contact person: Cimpian Alexandru
Phone: 0744/558995
Fax: + 40 264 333 147
Email: sandu@axaimobiliare.com
Address: Cluj-Napoca, Str. Memorandumului, nr. 19



