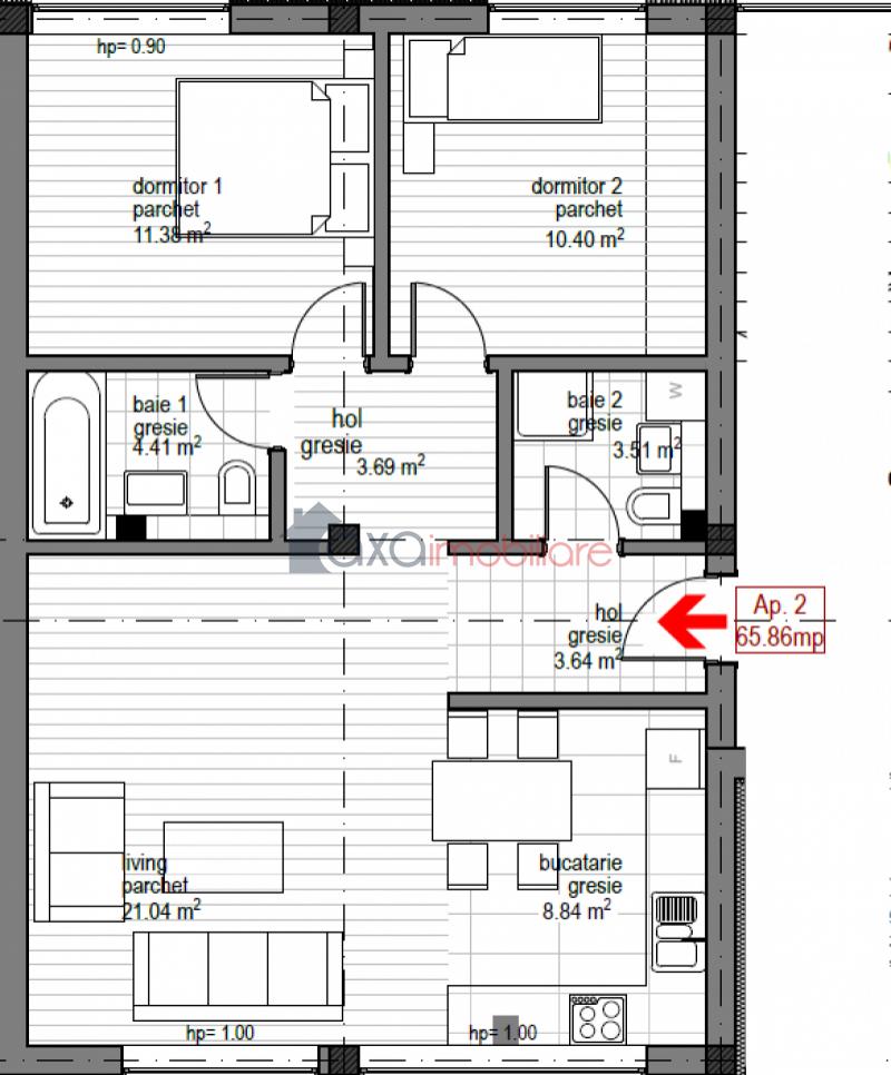
Apartment 3 rooms for sell in Cluj-napoca, Gheorgheni ID 3012
Price:
65 860 EURO
Price / sm:
1 000 EURO/m2
No. of rooms:
3
Floor:
Ground floor/2
New building:
yes
Build year:
2015
Finalized building:
yes
Finalized date:
Martie-Aprilie 2016
Comfort:
1
Build area:
65.86 m2
City:
Cluj-Napoca
Ward:
Gheorgheni
Street:
Romul Ladea
Add date:
03-11-2015
Update date:
18-02-2025
Views number:
13203
Characteristic details
Kitchen:
1
Bathrooms:
2
Parking:
no
Cellar:
no
Divided:
Semi divided
Finishing:
Semi finishing
With furniture:
no
Fit out:
no
Build:
Bricks
Frostedglass windows
Metal door
Heat station
Gas counter
CF
You can conctact us using the form below.
Contact person: Cimpian Alexandru
Phone: 0744/558995
Fax: + 40 264 333 147
Email: sandu@axaimobiliare.com
Address: Cluj-Napoca, Str. Memorandumului, nr. 19



